Create Your First Project
Start adding your projects to your portfolio. Click on "Manage Projects" to get started
Audio-Visual Design Work
Project type
Classwork
Location
West Lafayette
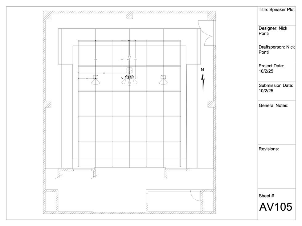
Through advanced coursework, I have gained a foundation in Audiovisual (AV) design, with a focus on technical documentation, acoustic modeling, and the process of designing an AV system for real world scenarios. I am proficient in AutoCAD for generating detailed speaker plots, rack elevations, and comprehensive signal flow diagrams. Furthermore, I have utilized Soundvision to create 3D renderings and predictive acoustic models, ensuring optimal loudspeaker performance within a given environment. My technical foundation is further supported by a strong understanding of AV infrastructure, Audio over IP (AoIP) protocols, and digital signal processing workflows. Below you can see examples of my work that I have completed through classes.




















